Quadrilocale in vendita

Marostica, Via Beato Lorenzino
€ 430.000
4 locali 4 locali
158 Mq 158 Mq
2 bagni 2 bagni

Quadrilocale in vendita

Marostica, Via Beato Lorenzino

Descrizione annuncio

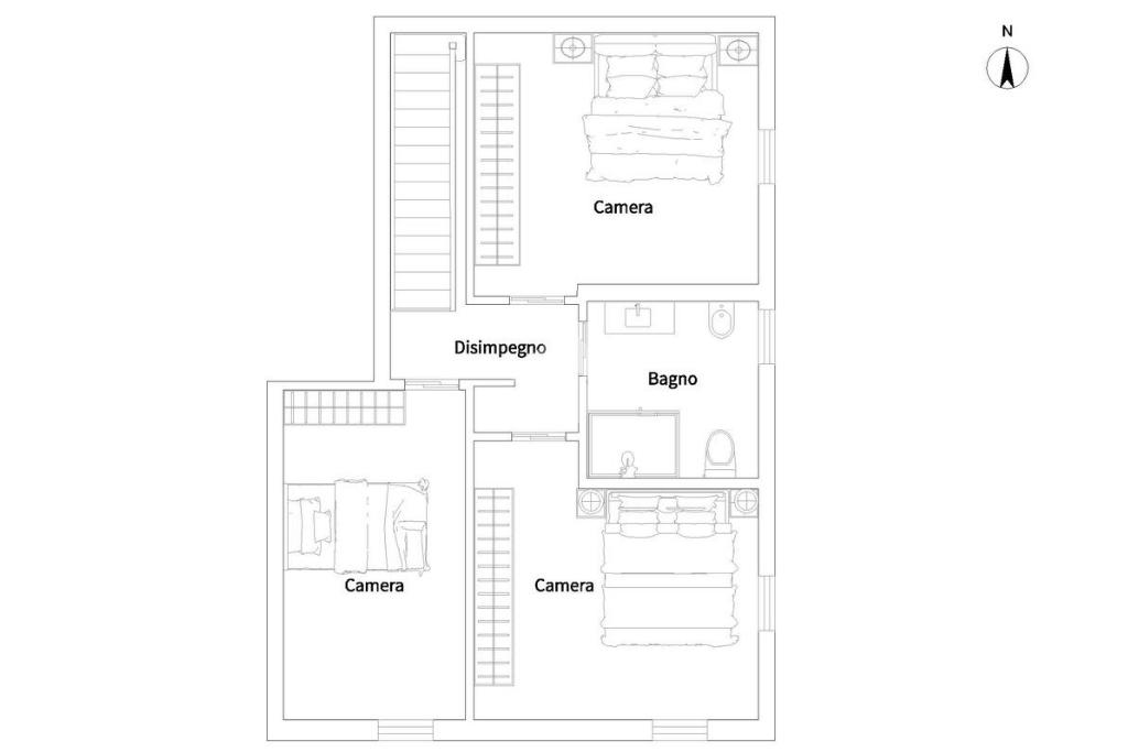
MAROSTICA – A pochi passi dalle mura della città, proponiamo quadrilocale in duplex di nuova costruzione in un elegante fabbricato composto da sole 2 unità residenziali, attualmente in fase avanzata di realizzazione con consegna stimata per febbraio 2026.

Al primo piano si sviluppa la luminosa zona living di 45 mq, un ampio open space che integra soggiorno e cucina con accesso al terrazzo.
Sullo stesso piano è presente un bagno finestrato.

Il piano superiore, valorizzato da travi a vista in legno e acciaio, ospita tre camere da letto, due matrimoniali e una doppia/studio – tutte dotate di ottima luminosità grazie a finestre e lucernari.
Completa il livello un secondo bagno con doccia, collocato in posizione centrale rispetto alle stanze.

A completare la proprietà troviamo una comoda taverna finestrata, perfetta come sala hobby, home gym o ambiente professionale, la centrale termica dedicata e garage doppio.

L’impianto di riscaldamento a pavimento è alimentato da pompa di calore di ultima generazione.

L’abitazione nasce dalla riqualificazione di uno degli edifici storici dell’area: la facciata originale è stata mantenuta, mentre la struttura è stata riprogettata combinando muratura tradizionale e tecnologia mista acciaio–legno X-Lam. L’intervento garantisce alte prestazioni termoacustiche e il raggiungimento della classe energetica A4. È inoltre possibile personalizzare le finiture interne.

Soluzione ideale per chi desidera un’abitazione moderna a ridosso del centro storico, con tutti i servizi a portata di mano, senza rinunciare a privacy, comfort e tranquillità.

COME CONTATTARCI

Chiamaci al numero 0424 471797, contattaci via Whatsapp al numero 329 8556625

Seguiteci sui nostri canali social, sarete così aggiornati sulle nostre proposte di vendita e di locazione!

Facebook: Gruppo Tecnocasa Marostica

Instagram: @tecnocasamarostica

Scaricate gratuitamente l'App Tecnocasa sul vostro smartphone e sarete sempre aggiornati sulle nostre proposte di vendita.

Mostra tutto

Nelle vicinanze

Trasporto pubblico Trasporto pubblico
Marostica - Piazza Ortigara
Marostica - Piazza Ortigara
280 m
Marostica - Cimitero
Marostica - Cimitero
510 m
Ricariche auto elettriche Ricariche auto elettriche
Lampionet Via IV Novembre
700 m
Scuole Scuole
Scuole
480 m
Istituto Comprensivo di Marostica
850 m
Scuola Primaria Giovanni Pascoli
2,0 Km
Scuola Primaria di Valle San Floriano
2,1 Km
Farmacia Farmacia
Farmacia Riello di Dr.ssa Elena Riello
460 m
Farmacia Caponi Luca
550 m
Farmacia ai Ciliegi Snc della Dr.ssa Sara Grilli e C.
1,2 Km
Farmacia Peruzzo Cortese
2,1 Km
Ospedali Ospedali
Ospedali
900 m
Supermercati Supermercati
Il Germoglio Snc di Borgnolo Giovanni e C
360 m
Acqua & Sapone
460 m
Tasca Diego
460 m
Conad
470 m
Tradizioni E Sapori Di Rizzo Maria Giovanna
570 m
Negozi Negozi
Negozi
270 m
Panificio Tasca di Tasca Mireno & C. Snc
270 m
Campana Abbigliamento
290 m
BULLI E PUPE DI LOI MARIA LUISA
310 m
Basic Sports Wear
380 m
Bar Bar
Café del Borgo
290 m
Mazzini 22 Food & Drink
310 m
Snack Bar Alpi
320 m
Bar Zanotto
340 m
Weinerei
460 m
Ristoranti Ristoranti
Ristorante Cinese Oriente
300 m
Pizzeria Superpizza
380 m
L'Angelo e Il Diavolo
480 m
Bucintoro
520 m
Ser Pizza Marostica
540 m
Mostra tutto

Caratteristiche

Rif.:
61142442
Piano:
1 di 2 (Piano su più livelli)
Posti auto:
2
Terrazzi:
1
Camere da letto:
3
Arredamento:
Assente
Mostra tutto
Prezzo Prezzo
€ 430.000
Rata mutuo Rata mutuo
€ 2.030 / mese
Spese annue Spese annue
€ 0
Proponi il tuo prezzoProponi il tuo prezzo

Classe Energetica

A4
A4
A4
A4
A4
A4
A4
A4
A4
EP globale non rinnovabile:
0.00 kW h/m² anno
EP globale rinnovabile:
0.00 kW h/m² anno
EP invernale del fabbricato:
EP estiva del fabbricato:
Anno di costruzione:
2025
Riscaldamento:
Autonomo
Tipo impianto:
A pavimento
Tipo alimentazione:
Metano

Ti interessa visionare l'immobile?

Fissa un appuntamento  Fissa un appuntamento

Richiedi informazioni

Clicca su Leggi per aprire l'informativa
* Questi campi sono obbligatori

Calcola il tuo mutuo

Semplice e senza impegno
Anticipo

( % )
Mutuo

( % )

pochi semplici passi

inserisci i tuoi dati
Questionario completato
Grazie per aver richiesto un appuntamento senza impegno con un nostro Consulente del Credito e Assicurativo.

Hai inserito correttamente tutti i dati necessari e a breve riceverai una e-mail con un link da convalidare per inviare i tuoi dati.
Affiliato
Studio Marostica Srl
Via Gianni Cecchin, 8/A 36063 Marostica (VI)

Il nostro staff


  • Alessandro Cerato
    Affiliato
Via Gianni Cecchin, 8/A 36063 Marostica (VI)
Zona: Marostica - Colceresa- Pianezze
Mostra su mappa
Orari: dal lunedì al venerdì 08.30 - 13.00 e 14.30 - 20.00; il sabato 08.30 - 16.00.
Affiliato
Studio Marostica Srl
Via Gianni Cecchin, 8/A 36063 Marostica (VI)

2025 Tecnocasa Franchising S.p.A. - P. IVA 08365160152 - Via Monte Bianco 60/A 20089 Rozzano (MI). Ogni agenzia ha un proprio titolare ed è autonoma. Privacy policy | Policy utilizzo | Cookie policy